Испытания на растяжение в нескольких направлениях подтверждают прочность, превышающую в три раза допустимую рабочую нагрузку, что обеспечивает более высокий запас прочности по сравнению с обычными проверками.
Плоские подъемные анкеры от HULK Metal обеспечивают надежное крепление в сборных железобетонных элементах. Изготовленные из высококачественной нержавеющей стали или углеродистой стали, например, Q345, эти вставки имеют резьбовую трубку, приваренную к плоской опорной пластине для бесшовной интеграции. Они обеспечивают безопасные подъемные операции с коэффициентом запаса прочности, более чем в три раза превышающим допустимую рабочую нагрузку. Идеально подходящие для строительных площадок, где требуется быстрая установка и надежная фиксация, наши анкеры выпускаются в различных размерах, чтобы соответствовать различным требованиям к нагрузке, обеспечивая стабильность во время транспортировки и монтажа.
1. Продукция более высокого качества
2. Сокращенный производственный цикл
3. Повышенная коррозионная стойкость
4. Больше вариантов доставки
5. Комплексное послепродажное обслуживание
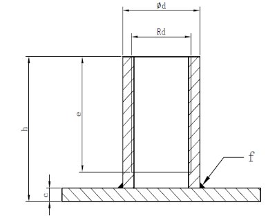
Плоские подъемные кронштейны встраиваются в сборный железобетон для обеспечения надежной фиксации при подъеме. Конструкция включает резьбовой конец для крепления муфты и широкое основание для распределения нагрузки; доступны в оцинкованном исполнении для дополнительной прочности.
Плоские подъемные кронштейны HULK Metal выпускаются в различных размерах, рассчитанных на разные безопасные рабочие нагрузки, от 0,5 до 12,5 тонн. Ключевые параметры включают диаметр резьбы, высоту и размеры основания, все они изготавливаются из таких материалов, как нержавеющая сталь или Q235, для обеспечения оптимальной прочности. Обработка поверхности, например, горячее цинкование, повышает коррозионную стойкость, а сертификация гарантирует соответствие стандартам. В этой таблице приведены технические характеристики, которые помогут выбрать подходящий кронштейн для ваших задач по работе с железобетонными конструкциями, обеспечивая баланс между компактностью и высокой производительностью.
| Наименование | Анкерная втулка с плоской пластиной (Flat Plate Lifting Socket) | |||||||
| Чертежи | ||||||||
| Материал | Нержавеющая сталь / Q345 / Q235 / 20# / Под заказ | |||||||
| Обработка поверхности | Без покрытия, электрооцинкование, горячее цинкование | |||||||
| Коэффициент запаса прочности | ≥ 3 | |||||||
| Сертификация | CE / ISO 9001 | |||||||
| SWL (тонн) | АРТИКУЛ | РЕЗЬБА (RD/M) | H (мм) | A (мм) | B (мм) | C (мм) | E (мм) | D (мм) |
| 0.5 | WPS-M/RD12-030 | 12 | 30 | 25 | 35 | 4 | 20 | 16 |
| 1.2 | WPS-M/RD16-035 | 16 | 35 | 35 | 50 | 4 | 26 | 21.5 |
| 2.0 | WPS-M/RD20-047 | 20 | 47 | 60 | 60 | 5 | 35 | 27 |
| 2.5 | WPS-M/RD24-054 | 24 | 54 | 60 | 80 | 5 | 36 | 31 |
| 4.0 | WPS-M/RD30-072 | 30 | 72 | 80 | 100 | 6 | 52 | 40 |
| 6.3 | WPS-M/RD36-084 | 36 | 84 | 100 | 130 | 6 | 60 | 48 |
| 8.0 | WPS-M/RD42-098 | 42 | 98 | 130 | 130 | 8 | 70 | 54 |
| 12.5 | WPD-M/RD52-117 | 52 | 117 | 130 | 150 | 10 | 97 | 68 |
Изучите основные характеристики плоских подъемных кронштейнов: от их прочной конструкции до практического применения в сборном железобетоне. Эти вставки сочетают резьбовые трубки с плоскими основаниями для надежной фиксации, обеспечивая универсальность в диапазоне нагрузок. Узнайте, как они работают, их преимущества перед альтернативами и этапы производства HULK Metal, где качество имеет первостепенное значение. Имея сертификаты, они подходят для сложных условий эксплуатации, а в разделе часто задаваемых вопросов (FAQ) представлены ответы на распространенные вопросы оптовых покупателей.
Анкерные втулки с плоской пластиной служат закладными анкерами в сборных железобетонных конструкциях, обеспечивая безопасный и эффективный подъем во время строительства. Изготовленные из долговечных материалов, таких как нержавеющая сталь для превосходной коррозионной стойкости или углеродистая сталь Q345 для экономичной прочности, эти втулки выдерживают суровые условия эксплуатации на объекте лучше, чем базовые аналоги. Варианты из нержавеющей стали отлично подходят для морской или химической среды, в то время как варианты из углеродистой стали легко справляются с общими конструкционными нагрузками.
Конструктивно втулка состоит из резьбовой трубки в верхней части для удобного соединения с подъемными петлями и квадратной опорной пластины в нижней части для широкого распределения нагрузки и стабильной анкеровки. Высококачественная сварка соединяет эти элементы, создавая единый узел, который сопротивляется сдвигающим силам более эффективно, чем болтовые конструкции. Эта техника сварки, часто включающая автоматизированные процессы, обеспечивает стабильность соединений без дефектов, повышая общую целостность изделия.
Сертификация играет ключевую роль: маркировки CE и ISO 9001 подтверждают соблюдение международных норм безопасности и качества. Эти документы означают строгие испытания на прочность при растяжении и чистоту материала, что дает покупателям уверенность в надежности при реальных нагрузках. По сравнению с несертифицированной продукцией, втулки HULK Metal снижают риски, соответствуя строгим строительным нормам в таких регионах, как Европа и Азия.
По сути, закладные детали с плоской пластиной плавно интегрируются в бетонные формы, обеспечивая незаметные, но мощные точки подъема. Их компактный профиль минимизирует визуальное воздействие на готовые конструкции, что делает их предпочтительными для архитектурных сборных элементов по сравнению с более громоздкими системами.
Анкерные втулки с плоской пластиной находят широкое применение в производстве сборного железобетона для фасадов зданий, сегментов мостов и инженерных сооружений. Они позволяют точно позиционировать тяжелые панели в высотном строительстве или инфраструктурных проектах. В тоннелестроении они помогают при работе с сегментами обделки, а трибуны стадионов выигрывают за счет их скрытой установки. Оптовое применение включает модульное домостроение, где быстрая сборка требует надежных подъемных точек.
По сравнению с традиционными крюками, анкерные втулки с плоской пластиной обеспечивают лучшую стабильность заделки и уменьшают повреждение бетона. Их оцинкованные поверхности дольше сопротивляются ржавчине, продлевая срок службы во влажной среде. Высокие коэффициенты безопасности обеспечивают спокойствие во время подъема, а настраиваемые размеры позволяют точно адаптировать изделия под различные проекты. В целом они оптимизируют операции, сокращая время простоя на объектах.
Наша команда детально изучает ваши чертежи и спецификации, обсуждая потребности в нагрузке и предпочтения по материалам. Этот этап позволяет создавать индивидуальные решения, гарантируя, что закладная деталь идеально соответствует вашей системе сборного железобетона, исключая несоответствия, задерживающие проекты.
мы закупаем высококачественную нержавеющую или углеродистую сталь у проверенных партнеров, а затем тестируем ее на прочность при растяжении и химический состав. Это подтверждает качество на начальном этапе, предотвращая дефекты, которые могут ослабить втулки, и обеспечивая более прочный продукт по сравнению с непроверенными поставками.
Прецизионные лазеры или пилы формируют трубы и пластины до точных размеров, сводя к минимуму отходы. Это создает чистые кромки для лучшей сварки, в результате чего втулки интегрируются в бетон легче, чем версии с грубой резкой.
Автоматизированные станки точно нарезают резьбу в трубах, обеспечивая плотную посадку с коушами. Стабильная резьба снижает вероятность сбоев соединения, предлагая более надежную работу по сравнению с вариантами с ручной нарезкой при больших объемах производства.
Роботизированные сварочные аппараты соединяют трубки с пластинами высокопрочными швами, которые проверяются на равномерность. Этот метод дает соединения, превосходящие ручную сварку по прочности, что увеличивает грузоподъемность для более безопасного подъема.
Каждая втулка проходит визуальный и размерный контроль, а также испытания на вырыв. Это позволяет выявлять проблемы на ранней стадии, поставляя закладные детали с минимальным количеством дефектов.
Специальные ящики защищают втулки во время транспортировки; доступны варианты для оптовой упаковки. Наша команда логистов координирует оперативные отгрузки, доставляя продукцию быстрее стандартных перевозчиков для немедленного использования.
После доставки мы оперативно решаем вопросы качества, предлагая замену в случае необходимости. Наша команда предоставляет рекомендации по эксплуатации, обеспечивая плавную интеграцию и решая проблемы быстрее, чем обычная служба поддержки.
Какие материалы доступны для анкерных втулок с плоской пластиной?
Варианты включают нержавеющую сталь для коррозионной стойкости или углеродистую сталь Q235 для доступности; возможна адаптация под нужды вашего проекта.
Сопоставьте показатель SWL (безопасная рабочая нагрузка) с вашим весом, сверяя резьбу и размеры с нашей таблицей для надежной фиксации в бетонных элементах.
Да, оцинковка продлевает срок службы во влажных условиях, предотвращая появление ржавчины лучше, чем необработанные поверхности, для долгосрочной надежности.
Предоставьте 2D-чертежи или образцы; наша команда разработает специальные втулки быстрее, чем предлагаются готовые варианты на рынке.
Короткие циклы благодаря эффективному планированию означают быстрое выполнение заказа, в зависимости от объема и спецификаций.
Да, мы ориентированы на крупных покупателей, предлагая скидки и складское хранение для поэтапных поставок.
CE и ISO 9001 гарантируют качество, обеспечивая строгие испытания для безопасности по сравнению с несертифицированной продукцией.
Установите деталь в форму перед заливкой, выровняв пластину плоско для равномерного распределения нагрузки и надежной анкеровки.
Мы решаем вопросы качества путем замены изделий, что поддерживается специализированной командой для оперативного урегулирования ситуаций.
Компания HULK Metal придерживается строгих стандартов контроля качества плоских подъемных кронштейнов, охватывающих каждый этап — от материалов до окончательной проверки. Наши передовые инструменты контроля и квалифицированный персонал гарантируют, что продукция превосходит стандарты, включая многонаправленные испытания на растяжение и проверку размеров. Такой комплексный подход минимизирует дефекты, обеспечивая надежную работу кронштейнов в железобетонных конструкциях, что подтверждается сертификатами CE и ISO 9001, гарантирующими долговечность.
Испытания на растяжение в нескольких направлениях подтверждают прочность, превышающую в три раза допустимую рабочую нагрузку, что обеспечивает более высокий запас прочности по сравнению с обычными проверками.
Точный подсчет и выборочная проверка партий гарантируют выполнение заказов в полном объеме, что снижает дефицит по сравнению с менее методичными проверками.
Заключительные проверки охватывают качество поверхности и упаковку, выявляя любые проблемы и обеспечивая более надежную доставку, чем при отправке без проверки.
Используя штангенциркули и сканеры, мы проверяем высоту, ширину и резьбу на соответствие техническим характеристикам, обеспечивая точную посадку, превосходящую по качеству несоответствующие альтернативные варианты.
Заводы HULK Metal сочетают в себе передовое оборудование и квалифицированные команды для производства высококачественных плоских подъемных кронштейнов. От линий резки и сварки до центров контроля качества мы поддерживаем соответствие стандарту ISO 9001 на всех этапах. Партнерские поставщики и собственная логистика оптимизируют операции, обеспечивая более быстрые циклы выполнения крупных заказов на железобетонные изделия.
Наш главный производственный цех оснащен станками с ЧПУ для резки, нарезания резьбы и роботизированной сварки, что обеспечивает эффективное изготовление гнезд. Расположенный на больших площадях, он обрабатывает большие объемы продукции с минимальным временем простоя, используя мониторинг в режиме реального времени для поддержания точности. Наши команды следуют строгим протоколам, превращая необработанную сталь в сертифицированные вставки быстрее, чем на небольших предприятиях, и обеспечивая бесперебойную работу с индивидуальными заказами.
Наш центр контроля качества, оснащенный испытательными стендами на растяжение, спектрометрами и 3D-сканерами, проводит тщательные проверки. Специализированные инспекторы отслеживают заказы от начала до конца, проводя испытания на разрыв и визуальные проверки. Такая система позволяет выявлять отклонения на ранних стадиях, гарантируя соответствие разъемов стандартам CE лучше, чем это делают обычные лаборатории, а отчеты предоставляются для обеспечения прозрачности.
Этот завод, специализирующийся на электро- и горячем цинковании, наносит равномерное покрытие для улучшенной защиты от коррозии. Вместительные резервуары позволяют быстро обрабатывать партии продукции, а герметизация облегчает хранение. Сотрудничество с экспертами позволяет получать разнообразные виды отделки, обеспечивая более высокую устойчивость к воздействию окружающей среды по сравнению со стандартными покрытиями.
Выбирайте плоские подъемные кронштейны HULK Metal для непревзойденного качества и эффективности в проектах с использованием сборного железобетона. Воспользуйтесь преимуществами более высоких сертификатов, более коротких циклов производства, превосходной коррозионной стойкости, более быстрой доставки и полной сервисной поддержки. Наши процессы, от индивидуального планирования до тщательного тестирования, гарантируют долговечность и надежность нашей продукции.
Вы получите плоскую подъемную скобу с сертификатом более высокого стандарта. Компания HULK имеет 16-летний опыт производства и обладает высокой квалификацией в этом процессе. Мы уделяем внимание качеству каждого изделия, поэтому наша профессиональная команда контроля качества проводит испытания на прочность в различных направлениях большого количества образцов сырья и готовой продукции. Процент годных изделий, которые вы приобретаете, составляет более 98%.
Вы получите плоскую подъемную опору с более коротким производственным циклом. Компания HULK располагает опытной технической командой, которая может разработать для вас наиболее подходящее производственное решение. Вы можете ознакомиться с динамикой производства заказа с помощью предоставленных нами фотографий и видео. Мы также можем предоставить вам возможность участвовать в производстве заказов, не выходя из дома, посредством видеозвонков и других методов.
Вы получите плоскую подъемную скобу с повышенной коррозионной стойкостью. Компания HULK уделяет особое внимание коррозионной стойкости своей продукции. Даже если вам не требуется гальванизация изделий, мы также проведем соответствующую антикоррозионную обработку для облегчения хранения и использования. Мы контролируем производство и обработку поверхности каждой партии, чтобы гарантировать соответствие вашим требованиям.
Вы можете приобрести плоские подъемные кронштейны с более коротким сроком доставки. Компания HULK предоставляет бесплатные услуги по складированию и консультации по доставке. Вы можете размещать заказы в больших количествах, чтобы получить дополнительные скидки, а готовая продукция будет храниться непосредственно на складе HULK, и вы сможете организовать доставку по мере необходимости. Мы также бесплатно разработаем для вас более экономичный маршрут доставки.
Приобретая продукцию HULK, вы можете воспользоваться комплексным послепродажным обслуживанием. Компания HULK создала команду послепродажного обслуживания, включающую отделы закупок, производства, контроля качества, технологий, дизайна, финансов и т.д., поэтому мы можем решить любые проблемы, которые могут возникнуть у вас в процессе покупки. В HULK вы получите более удобное обслуживание при покупке.
Будьте в курсе последних тенденций в области подъемных кронштейнов с плоскими пластинами благодаря нашим тщательно отобранным статьям, содержащим советы по установке, сравнение материалов и отраслевые тренды. В этих статьях освещаются лучшие практики работы с железобетоном, меры безопасности и инновации в подъемных вставках. Идеально подходит для инженеров и подрядчиков, стремящихся получить более глубокие знания для оптимизации проектов и выбора подходящих аксессуаров.
Расширьте свой набор инструментов для работы с железобетоном с помощью ассортимента HULK Metal, включающего подъемные муфты, опалубочные устройства и анкерные каналы. Эти аксессуары дополняют плоские подъемные гнезда, предлагая такие решения, как быстросъемные магниты, резьбовые вставки и коробки для проволочных петель. Разработанные для работы с большими объемами материалов, они повышают эффективность при перемещении панелей и сборке конструкций.
Подъемные анкеры для сборного железобетона — это комплектующие, разработанные специально для подъема элементов ЖБИ. К ним относятся стержневые подъемные анкеры (также известные как анкеры типа «собачья кость» или анкеры со сферической головкой), двухголовые подъемные анкеры, технологические анкеры и др. Они устанавливаются внутри сборных железобетонных элементов и фиксируются с помощью пустотообразователя, который создает в месте крепления углубление для последующей установки подъемной муфты. Они могут использоваться в таких конструкциях, как бетонные лотки, водопропускные трубы, лестничные марши, трубы, панели и т.д.
Подъемные и крепежные втулки, также часто называемые подъемными и крепежными закладными деталями, — это комплектующие, предназначенные для подъема и анкеровки элементов сборного железобетона. Они предварительно закладываются в определенных местах бетона для создания точек подъема или монтажных отверстий для перемещения или соединения других элементов. С развитием индустрии быстровозводимых бетонных конструкций появилось множество их разновидностей. Как правило, они состоят из двух частей: гильзы и анкерующего элемента для передачи нагрузки. В зависимости от типа анкерующего элемента существует несколько десятков модификаций данных изделий.
Плоские анкеры для сборного железобетона изготавливаются из высокопрочных пластин легированной стали и предназначены для закладки в элементы ЖБИ в качестве точек подъема. Международным стандартом для данной продукции является сертификация CE. Каждая партия проходит строгие приемо-сдаточные испытания на растяжение с приложением нагрузки, соответствующей трехкратному (или даже более высокому) запасу прочности, вплоть до момента разрушения изделия.
Существует множество типов таких анкеров, и при их выборе необходимо учитывать форму, толщину, расположение точек подъема, вес и другие характеристики железобетонных элементов.
HULK Metal занимается производством и продажей подъемных муфт для сборного железобетона с 2006 года и накопила богатый опыт. Мы создали полную цепочку поставок и сформировали профессиональную команду для предоставления высококачественной продукции и услуг. Наши подъемные муфты прошли сертификацию CE и выдерживают испытания на разрушение с 5-кратным запасом прочности. Здесь вы можете ознакомиться с нашим ассортиментом продукции, производственными мощностями и сервисными возможностями.
HULK Metal предлагает широкий ассортимент подъемных крюков классов прочности G60, G70 и G80 с отлаженной цепочкой поставок. Мы располагаем передовым кузнечным заводом и интегрированным конвейерным производством. Качество подъемных крюков гарантировано, и мы предлагаем три вида обработки поверхности: электрогальваническое цинкование, горячее цинкование и порошковое покрытие. Мы строго соблюдаем стандарты управления ISO 9001, чтобы предоставлять вам продукцию и услуги более высокого качества. Вы можете связаться с нами в любое время, чтобы посетить завод, ознакомиться с нашими производственными и сервисными возможностями и разместить заказ, когда будете полностью удовлетворены.
Пустотообразователи используются для установки подъемных и распорных анкеров, а также других комплектующих, требующих предварительной закладки в сборные железобетонные изделия. Оставляемое ими углубление необходимо для соединения подъемной муфты с анкерами. Мы предлагаем полный ассортимент стандартных пустотообразователей и услуги OEM для специальных требований.
Магнитные фиксаторы для сборного железобетона — один из основных видов продукции HULK Metal. Они заслужили признание клиентов благодаря высокому качеству и разумной цене. В наших фиксаторах используются высокоэффективные и долговечные неодимовые магниты (NdFeB). Применение передовых технологий позволяет эффективно повышать производительность и снижать затраты, гарантируя при этом безупречное качество продукции. Мы предоставляем услуги по обеспечению качества, поэтому вы можете совершать закупки с полной уверенностью.
HULK Metal также специализируется на OEM-услугах по производству анкерных каналов, Т-образных болтов, тросовых коробок, кронштейнов для крепления камня и других комплектующих. Анкерные каналы могут быть изготовлены из холоднокатаной, горячекатаной и нержавеющей стали. Т-образные болты производятся из углеродистой, легированной и нержавеющей стали. Наши тросовые коробки оснащены одним тросом, а кронштейны для крепления камня изготавливаются исключительно под заказ (OEM). Мы разработаем оптимальное решение в соответствии с вашими требованиями, чтобы гарантировать соблюдение сроков поставки, качества и цены.
HULK Metal предлагает высококачественные анкеры с «лапкой», разработанные для безопасного подъема сборных железобетонных изделий. Наши стержневые подъемные анкеры, сертифицированные по стандартам CE и ISO 9001, гарантируют трехкратный запас прочности, сокращенные циклы производства и оперативную доставку.
Компания HULK Metal поставила десятки миллионов анкерных штифтов грузоподъемностью от 1,3 до 32 тонн сотням покупателей по всему миру. Мы предлагаем полный ассортимент продукции и отлаженную цепочку поставок, чтобы обеспечить вам качественное обслуживание. Мы предоставляем услуги по контролю качества. Пожалуйста, обращайтесь с вопросами.
Компания HULK Metal производит анкерные штифты (типа «собачья кость»), соответствующие самым высоким стандартам и отвечающие самым высоким требованиям к подъему сборных железобетонных конструкций. Мы предлагаем комплексные решения для OEM-производителей, от проектирования и производства до обработки поверхности и доставки, гарантируя, что каждый анкер обладает превосходной прочностью, коррозионной стойкостью и совместимостью с различными подъемными системами.
Компания HULK Metal выделяется как ведущий производитель подъемных анкеров, специализирующийся на железобетонных подъемных анкерах, соответствующих строгим требованиям сертификации CE и имеющих трехкратный запас прочности.
Надежные двухсторонние подъемные анкеры для сборного железобетона от HULK Metal обеспечивают безопасный подъем, повышенный коэффициент прочности и коррозийную стойкость. Продукция полностью соответствует стандартам CE и ISO 9001, отвечая самым строгим требованиям строительной отрасли по всему миру.
Долговечные подъемные анкеры с шаровидной головкой от HULK Metal, сертифицированные по стандартам CE, обеспечивают надежную грузоподъемность и коррозионную стойкость, гарантируя безопасный и эффективный подъем сборных железобетонных конструкций с быстрой доставкой и гарантией качества.
Подъемные штифты для сборного железобетона, поставляемые компанией HULK Metal, имеют сертификат CE. Мы можем поставлять подъемные штифты, которые проходят испытание на растяжение с трехкратным превышением коэффициента запаса прочности и строго соответствуют стандарту ISO 9001, обеспечивая высокое качество продукции.
Анкер с коротким волнистым хвостом — это компактное высокопрочное грузоподъемное решение для сборных железобетонных элементов. Его волнообразный хвост из арматуры обеспечивает равномерное распределение нагрузки, предотвращает растрескивание бетона и надежно соединяется с резьбовыми втулками или подъемными вставками для безопасной и эффективной работы.
Анкер с волнистым хвостовым оперением изготавливается из высокопрочной стальной трубы и арматурного профиля, экструдированного после гибки. Диапазон его рабочей нагрузки составляет от 0,5 до 8,0 тонн. Существует два стандарта резьбы: M и RD.
HULK Metal — известный китайский поставщик высококачественных и экономически выгодных резьбовых закладных деталей для подъема ЖБИ. Благодаря отлаженной цепочке поставок и профессиональной команде мы поставляем клиентам по всему миру анкеры с плоским основанием, цельностержневые анкеры, трубчатые анкеры и другие виды изделий. Мы обеспечиваем полный комплекс услуг по контролю качества. Будем рады вашему запросу.
HULK Metal является одним из ведущих поставщиков высококачественных подъемных закладных деталей с плоским концом в Китае. Чтобы обеспечить лучший сервис и качество продукции, мы сформировали полную цепочку поставок. Мы строго придерживаемся стандартов управления ISO 9001 и за годы развития наладили выпуск полного ассортимента закладных деталей с плоским концом, сертифицированных по стандарту CE.
Подъемные закладные детали из цельного прутка, поставляемые HULK Metal, прошли сертификацию CE. Они выдерживают испытания на растяжение с трехкратным коэффициентом безопасности. Мы строго соблюдаем стандарты ISO 9001 при управлении всей цепочкой поставок, чтобы гарантировать вам высокое качество продукции и сервиса.
Прочные стержневые крепежные элементы встраиваются в сборный железобетон для надежного резьбового соединения. Изготовленные из прочных стальных стержней, на одном конце имеется резьба для крепления, а на другом – отверстие для арматуры, что повышает структурную целостность.
Комбинированное подъемное гнездо сочетает в себе анкерный штифт и резьбовое гнездо, обеспечивая прочное и надежное соединение для подъема и перемещения сборных железобетонных элементов в строительных и инфраструктурных проектах.
Плоский анкер с фиксирующим штифтом от HULK Metal оснащен надежной поперечной перекладиной для повышения стабильности нагрузки. Изготовленный в соответствии со стандартами CE и ISO 9001, он обеспечивает исключительную прочность, коррозионную стойкость и надежность для различных задач по подъему сборного железобетона.
Анкерные гильзы с изогнутым концом, также известные как анкерные вставки с изогнутым концом, являются важными элементами для анкеровки в сборном железобетоне. Эти гильзы обеспечивают надежные точки крепления элементов, а их изогнутая конструкция улучшает сцепление и устойчивость.
Трубчатые подъемные вставки, поставляемые компанией HULK Metal, прошли сертификацию CE. Трубчатые подъемные вставки выдерживают испытание на растяжение с трехкратным запасом прочности, и каждая партия продукции сопровождается подробным протоколом испытаний.
Компания HULK Metal может предоставить вам длинные волнистые подъемные вставки стандарта RD и M с резьбой 12-45 и рабочей нагрузкой от 0,5 до 8 тонн. Они соответствуют международному стандарту CE и должны пройти испытание на растяжение с трехкратным запасом прочности.
Компания HULK Metal производит прочные цельнолитые крепежные элементы с поперечными штифтами и вставками с поперечными балками для сборного железобетона. Продукция сертифицирована по стандартам CE и ISO 9001, отличается высокими показателями безопасности и быстрой доставкой крупных заказов.
HULK Metal предлагает анкерные гильзы с плоским концом премиального качества, разработанные для безопасного и эффективного перемещения сборных железобетонных элементов. Изготовленные из высокопрочной легированной стали и сертифицированные по стандартам CE и ISO 9001, эти подъемные вставки обеспечивают исключительную грузоподъемность и коррозийную стойкость.
Трубчатые подъемные анкеры HULK Metal, изготовленные из высококачественной или нержавеющей стали, обеспечивают надежные резьбовые соединения в сборном железобетоне. Сертифицированные по стандарту CE и прошедшие прецизионную обработку, они гарантируют стабильную работу при подъеме, исключительную долговечность и соответствие строгим требованиям безопасности для различных строительных нужд.
Длинная волнистая подъемная муфта сочетает в себе резьбовую стальную трубу и арматурный стержень с волнистым концом для обеспечения более глубокой передачи напряжений в сборном железобетоне. Разработанная для тяжелых подъемных работ, она соответствует стандартам CE и ISO 9001 и обеспечивает четырехкратный запас прочности.
Q345/20#/Нержавеющая сталь/Другие
Оцинкованная/Черная
8~52
≥3
Плоские подъемные кронштейны встраиваются в сборный железобетон для обеспечения надежной фиксации при подъеме. Конструкция включает резьбовой конец для крепления муфты и широкое основание для распределения нагрузки; доступны в оцинкованном исполнении для дополнительной прочности.
Крепежные гнезда с плоским концом, также известные как крепежные вставки с плоским концом, надежно фиксируются в сборном железобетоне. Изготовленные из прочной стали, они имеют плоский конец для удобства установки и резьбовую внутреннюю часть для болтов.
Пластинчатые уширенные анкеры HULK Metal имеют конструкцию с приваренной стальной пластиной и головкой, предназначенную для анкеровки в бетоне при подъеме за ребро. Доступные в различных размерах с вариантами гальванического покрытия, они обеспечивают безопасную нагрузку до 10 тонн.
Односторонние монтажные анкеры служат специализированными грузоподъемными закладными деталями для сборного железобетона, предназначенными для односторонней нагрузки при монтаже элементов. Они интегрируются с кольцевыми муфтами и пустотообразователями, обеспечивая устойчивые точки крепления, которые повышают безопасность и снижают напряжение в панелях при проведении строительных работ.
HULK Metal поставляет плоские анкеры, изготовленные из высококачественных сплавов, для надежного подъема в проектах по всему миру, связанных со сборным железобетоном.
HULK Metal является надежным поставщиком анкеров для монтажа в Китае, поставляя продукцию высокого стандарта для подъема сборного железобетона. Наши анкеры обеспечивают безопасную эксплуатацию благодаря превосходной прочности и коррозионной стойкости, что подкрепляется комплексной производственной поддержкой для оптовых заказов.
Компания HULK Metal поставляет анкерные крепления, сертифицированные по стандартам CE и ISO9001, с надежными коэффициентами безопасности, быстрой доставкой и профессиональной поддержкой. Выбирайте наши анкерные крепления для получения высококачественных и комплексных решений по подъему сборных железобетонных конструкций.
Компания HULK Metal поставляет высококачественные двухточечные анкеры, предназначенные для надежного подъема сборных железобетонных элементов. Наши анкеры, сертифицированные по стандартам CE и ISO 9001, гарантируют безопасность, долговечность и эффективность.
Кольцевая муфта , поставляемая HULK Metal, сертифицирована CE и способна пройти испытание на растяжение с коэффициентом безопасности 5. Мы интегрировали полную цепочку поставок и сформировали полноценную команду для предоставления лучших продуктов и услуг.
Подъемные проушины для сборного железобетона от HULK Metal, также известные как подъемные муфты или подъемные петли, разработаны с высокой точностью для тяжелых подъемных работ. Изготовленные из высокопрочных материалов, они обеспечивают безопасность, долговечность и эффективность при подъеме сборного железобетона по всему миру.
Высококачественная подъемная петля в форме собачьей кости с сертификатами CE и ISO9001. Прочная, безопасная и долговечная для подъема сборных железобетонных конструкций. Более короткий производственный цикл и быстрая доставка от надежного китайского поставщика HULK Metal.
HULK Metal поставляет сертифицированные по стандартам CE и ISO 9001 подъемные муфты для штифтовых анкеров с пятикратным запасом прочности, сокращенными циклами производства и полной послепродажной поддержкой для глобальных проектов в сфере сборного железобетона.
Подъемное кольцо типа "собачья кость" с цепью, поставляемое компанией HULK Metal, прошло испытание на пятикратный запас прочности и имеет сертификат CE. Мы можем обеспечить грузоподъемность от 1,3 до 20 тонн.
Кольцевая муфта, поставляемая компанией HULK Metal, имеет сертификат CE и проходит испытание на растяжение с коэффициентом запаса прочности 5. Мы создали полную цепочку поставок и сформировали сплоченную команду для предоставления более качественных продуктов и услуг.
Подъемные Петли для ЖБИ поставляемые HULK Metal, прошли сертификацию CE и ISO 9001, а также успешно выдерживают испытания с 5-кратным коэффициентом запаса прочности. HULK Metal — опытный производитель в Китае. Будем рады вашему запросу.
Q345/35CrMo/Другие
Оцинкованная/Черная/Порошковое покрытие
1,3~32,0
≥5
Точное литье
HULK Metal обладает развитой цепочкой поставок, что позволяет предлагать вам полный ассортимент крюков с вилочным сопряжением (Clevis Slip Hooks), включая классы прочности G43, G70, G80, с маркировкой CE, с предохранительным замком или без него, а также с электрогальваническим, горячим цинкованием или порошковым покрытием.
Мы поставили клиентам в более чем 100 стран и регионов мира укорачивающие крюки с вилочными захватами с головкой G43 70 80 G43 70 80 коэффициент безопасности от 2 до 4 кратнее.
Компания HULK Metal — опытный поставщик крюков-захватов в Китае. Мы создали полную цепочку поставок и сформировали профессиональную команду для предоставления более качественных продуктов и услуг. Мы можем предложить крюки-захваты различных спецификаций и с различной обработкой поверхности.
Компания HULK Metal — опытный поставщик в Китае, предлагающий крюки с проушиной из различных материалов, различной прочности, с сертификатами, обработкой поверхности и размерами. Мы создали полную цепочку поставок, чтобы обеспечить контроль над сырьем, производством и доставкой, гарантируя высокое качество и низкую стоимость подъемных крюков.
Анкерное углубление — важный компонент для точного позиционирования подъемных анкеров в сборных железобетонных элементах. Компания HULK Metal поставляет анкерные углубления из различных материалов и в различных конфигурациях, чтобы соответствовать различным подъемным системам и методам производства.
Компания HULK Metal поставляет высококачественные резиновые опалубочные формы для подъемных систем из сборного железобетона. Они используются с опалубочными формами для анкерных и анкерных креплений, обеспечивая точное формирование углублений, сокращение производственных циклов и ускоренную доставку.
HULK Metal поставляет надежные пуансоны для сферических подъемных анкеров, предназначенные для производства сборных железобетонных изделий. Мы предлагаем широкий размерный ряд для нагрузок от 1,3 до 32 тонн, подтвержденный сертификатами CE и ISO 9001. Наши клиенты получают сокращенные сроки производства и комплексную поддержку при оптовых заказах.
Компания HULK Metal предлагает широкий выбор сборных магнитных профилей. Благодаря высокому качеству и доступной цене, это ваш лучший выбор.
Резиновая опалубка для анкерных болтов изготовлена из прочной резины с усиленной задней металлической пластиной. Она предназначена для крепления анкерных болтов в сборном железобетоне, обеспечивая точное позиционирование, легкое извлечение и надежную подъемную работу.
Являясь одним из ведущих поставщиков магнитных выемкообразователей в Китае, HULK Metal располагает современными заводами и совершенной цепочкой поставок, чтобы предоставить вам высококачественную продукцию и услуги.
HULK Metal предлагает сертифицированные по стандарту CE магнитные держатели для подъемных и фиксирующих закладных деталей или анкерных втулок. Наш завод оснащен современным станочным парком, установками лазерной резки и сборочными линиями, что позволяет максимально эффективно производить сертифицированные CE магнитные держатели для анкерных втулок и закладных деталей (Precast Lifting Fixing Insert Socket Magnet) с более высоким коэффициентом выхода годной продукции.
Магниты для фиксации электрических коробок от HULK Metal имеют прочный резиновый корпус в сочетании с мощными неодимовыми магнитами NdFeB, что обеспечивает надежную фиксацию электрических коробок в сборном железобетоне. Эти магниты могут быть изготовлены на заказ по форме, размеру и отделке, что обеспечивает гибкость при оптовых заказах.
Наши Магнитные Системы для Опалубки разработаны для производства сборного железобетона, предлагая многоразовые и стабильные решения для фиксации. Они поддерживают различные размеры форм и обеспечивают лучшую экономическую эффективность для крупномасштабных строительных проектов.
Наш встроенный магнит для фиксации гофрированных труб сочетает в себе корпус из высококачественной стали с мощными магнитами для обеспечения надежной фиксации при производстве сборного железобетона. Он сокращает время монтажа, повышает эффективность и обеспечивает стабильную работу в различных областях применения, помогая клиентам получать более безопасные и надежные бетонные элементы.
Стальные закладные пластины являются важными компонентами, используемыми для создания прочных и надежных точек соединения в сборных железобетонных конструкциях. Являясь опытным производителем в Китае, HULK Metal поставляет закладные детали для бетона, обеспечивая стабильное качество, гибкую кастомизацию и неизменные производственные мощности.
Т-образные болты для анкерных каналов от HULK Metal изготавливаются методом прецизионной ковки из высокоэффективной легированной или нержавеющей стали. Варианты обработки поверхности, включая электроцинкование или горячее цинкование, значительно повышают устойчивость к коррозии, что делает их надежным решением для соединений в сборном железобетоне при реализации строительных и инфраструктурных проектов.
Анкерные каналы HALFEN от HULK Metal обеспечивают превосходное качество, соответствуют стандартам сертификатов CE и ISO и обладают пятикратным коэффициентом безопасности. Наше быстрое производство и доставка в сочетании с профессиональной послепродажной поддержкой делают оптовые закупки простыми и надежными.
Наименование: Петлевой бокс для сборного железобетона
Пресс-формы: Полный ассортимент форм
Материалы: Стальной трос / Стальной лист / По индивидуальному заказу
SL (мм) ±10: 60 / 80 / 100 / 120 / 140
Наши анкерные каналы обеспечивают превосходную прочность, сертифицированную безопасность и гибкость применения в сборном железобетоне. Изготовленные с использованием передовых процессов, они гарантируют долговечность, упрощенный монтаж и быструю доставку. HULK Metal предоставляет оптовым покупателям полное техническое обслуживание и надежную послепродажную поддержку.
Наши саморезы для бетона разработаны для надежной установки без использования анкерных креплений. Оцинкованные саморезы для бетона обеспечивают превосходную коррозионную стойкость, что делает их идеальными для использования внутри и снаружи помещений. Компания HULK Metal предлагает широкий выбор размеров, вариантов обработки поверхности и индивидуальных решений, соответствующих вашим потребностям.
Q345/20#/Нержавеющая сталь/Другие
Оцинкованная сталь
0,8~25,0
6~32
≥3
Металлические подъемные петли HULK изготовлены из легированной или углеродистой стали, имеют прецизионную резьбу и электрооцинкованы для защиты от коррозии. Предназначенные для использования с подъемными муфтами, они обеспечивают безопасное и надежное перемещение сборных железобетонных элементов с коэффициентом запаса прочности ≥4.
Плоский подъемный кронштейн производства HULK Metal отличается хорошим качеством.
Как ведущий поставщик услуг в сфере металлообработки, мы стремимся к тому, чтобы каждый клиент чувствовал полную уверенность и безопасность на всех этапах — от закупки до реализации. Мы помогаем партнерам эффективнее раскрывать свой потенциал, непрерывно устанавливая новые стандарты качества продукции и сервиса.
Китай, Циндао, ул. Чуньян, 86, здание Интеллектуального парка А, офис 901, 266109
© 2025 HULK Metal Все права защищены. Все права защищены.
